Dateien & Unterlagen
Unser Video vom Objekt
Die Immobilie
Haus zum Kauf
-
Objekt-Nr
20040-P2000
-
verfügbar ab
01.12.2025
-
Baujahr
1977
-
Unterkellert
Ja
-
Bad mit
Dusche, Wanne
-
Heizungsart
Zentralheizung
-
Zustand
gepflegt
-
Provisionspflichtig
Räume und Flure
-
Anzahl Schlafzimmer
3
-
Anzahl Badezimmer
1
-
Anzahl Balkone
1
-
Anzahl Terrassen
1
Beschreibung
Ausstattung
Lage
Sonstiges
Dieses charmante Reihenendhaus überzeugt durch seine vielfältigen Nutzungsmöglichkeiten und eine ruhige Lage in einem angenehmen Wohnumfeld. Die ansprechende Fassadengestaltung, bestehend aus gelben und grauen Klinkern sowie eleganten Schieferplatten im oberen Bereich, verleiht dem Haus einen besonderen Charakter. Das Haus hat Kunststofffenster aus dem Jahr 1998, teilweise in ansprechender Holzoptik. Diese sind mit Rollläden ausgestattet und bieten hervorragenden Wärmeschutz sowie Privatsphäre. Eine effiziente Gasheizung sorgt für behagliche Wärme und Warmwasser. Zusätzliche Ausstattungsmerkmale wie eine Alarmanlage und eine Satellitenschüssel bieten Sicherheit und Komfort. Die hochwertige Einbauküche, ausgestattet mit AEG-Geräten, verbleibt im Haus. Das Objekt ist ab dem 1. Dezember 2025 bezugsfrei.
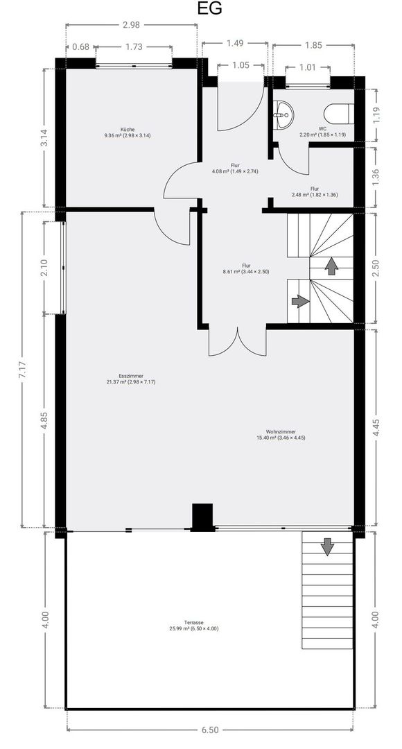
Im Erdgeschoss empfängt Sie ein einladender Eingangsbereich, der mit Fliesenboden, einem praktischen Einbauschrank, weiß lackierten Wandpaneelen und einer stilvollen dunklen Holzdecke gestaltet ist. Das helle Gäste-WC profitiert von natürlichem Tageslicht. Die moderne Küche, die sich in unmittelbarer Nähe zum Wohnbereich befindet, ist funktional und einladend. Das lichtdurchflutete Wohnzimmer, ausgestattet mit einer großen Glasfront zur Terrasse und grauem Vinylboden, verfügt über einen gemütlichen Kachelofen, der für eine angenehme Atmosphäre sorgt.
Im Obergeschoss setzt sich das harmonische Gestaltungskonzept mit Holzelementen fort. Alle Wohnräume sind mit Teppichböden ausgelegt. Das Badezimmer ist funktional gestaltet und bietet eine Badewanne, Dusche, WC, Waschbecken, ein Fenster und Spotbeleuchtung. Vom Elternschlafzimmer hat man Zugang zum Balkon. Es gibt drei weitere Schlafzimmer und ein Ankleidezimmer im Dachgeschoss.
Der gepflegte Außenbereich überzeugt durch seine Vielseitigkeit. Die großzügige Terrasse, um 2012 saniert, ist mit einer Markise ausgestattet und bietet Zugang zum Garten sowie zu einer gemauerten Gartenscheune mit Stromanschluss. Der weitläufige Garten umfasst gepflegte Wege, einen idyllischen Gartenteich, ein Gewächshaus und weitere Holzunterstände. Der Balkon im Obergeschoss bietet zusätzliche Freifläche für entspannte Stunden im Freien.
- Massivbauweise mit gelber und grauer Klinkerfassade, Schiefer im oberen Fassadenbereich.
- Kunststofffenster aus dem Jahr 1998, teilweise in Holzoptik.
- Manuelle Rollläden in allen Geschossen
- Gasheizung mit Warmwasseraufbereitung
- Alarmanlage mit Fernbedienung
- Erdgeschossboden 2020 erneuert
- Partykeller mit Theke
- Safe und Pumpensumpf vorhanden
- Gäste-WC mit Fenster
- Großes Wohnzimmer mit Schiebetür zur Terrasse und Kachelofen
- Badezimmer mit Wanne, Dusche und Fenster
- Balkonzugang über das Schlafzimmer im OG
- Große Terrasse mit Markise
- Garten mit Teich und Gewächshaus
- Gartenscheune mit Strom
- Holzunterstand
- Erneuerte Zaunanlage (2022)
Die Immobilie liegt in einer besonders begehrten Wohngegend von Geldern, die durch ihre hervorragende Infrastruktur und das angenehme Wohnumfeld besticht. Zahlreiche Einkaufsmöglichkeiten, darunter Supermärkte und Bäckereien, sowie diverse Dienstleistungsangebote sind in kurzer Zeit erreichbar und gewährleisten eine komfortable Versorgung des täglichen Bedarfs.
Für Familien bietet die Umgebung zahlreiche Vorteile: Kindergärten, Grundschulen und weiterführende Schulen befinden sich in der Nähe und sind gut erreichbar.
Bushaltestellen und der Gelderner Bahnhof bieten schnelle Verbindungen in die umliegenden Städte und Gemeinden. Darüber hinaus besteht eine gute Anbindung an überregionale Verkehrswege.
Die Freizeitmöglichkeiten sind vielfältig. Parks, Grünflächen und Naherholungsgebiete laden zu Spaziergängen und sportlichen Aktivitäten ein. Sportvereine, Fitnessstudios und weitere Freizeitangebote bieten zahlreiche Optionen zur aktiven Erholung. Kulturelle Einrichtungen, Veranstaltungen und eine abwechslungsreiche Gastronomie ergänzen das vielseitige Angebot.
Insgesamt bietet die Lage eine gelungene Kombination aus urbanem Komfort und einer ruhigen, naturnahen Wohnatmosphäre, ideal für alle, die Wert auf hohe Lebensqualität und gute Erreichbarkeit legen.
Hier geht es zu unserem Immobilienvideo:
https://youtu.be/_hXBUNxHNpA